電話でのお問い合わせは0166-21-3377
〒070-0032 北海道旭川市2条通16丁目1393番地2
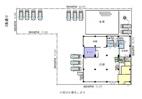
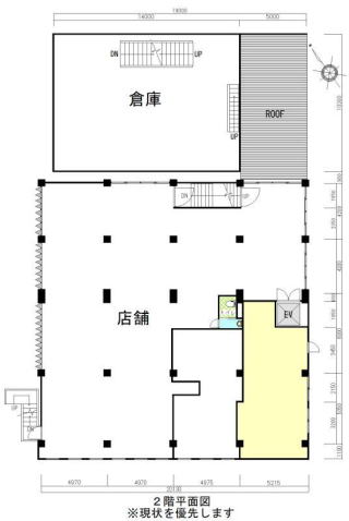
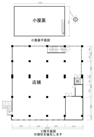
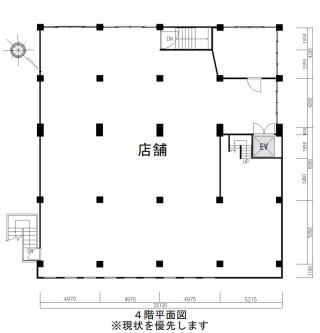
・旭川中心部の大型物件(店舗・事務所・倉庫)になります。
・旭川駅徒歩約8分の利便性の高い立地です!敷地内には約20台駐車可能なスペースがございます。
・建物使用には改修工事が必要になりますが、様々に活用可能です。引渡し前に敷地測量を行います。
・現状での引渡しとなります。お気軽に、お問合わせをお待ちしております。













